【開箱】桃園32坪北歐風簡約小宅,小預算設計裝潢分享|飛創空間規劃

by olioli9832
飛創空間規劃有限公司

桃園預售屋室內設計裝潢分享:小預算也能輕鬆打造溫馨簡約的質感小宅 feat. 飛創空間規劃有限公司

買房真的的是一個大坑,除了付頭期款,緊接著還要煩惱設計裝潢跟家具購買等blabla的費用
身為不到 30 歲的小資族,付完頭期之後,存款就已經是幾乎被清空的狀態了…
因此對於設計裝潢這塊,我秉持著能省則省的心態!
而今天要來介紹的這間,是桃園的在地設計裝潢公司—飛創空間規劃有限公司
價格也還算親民,而且在他們家官網上有列出很多之前做過的作品成果,可以先搜尋參考看看是不是自己喜愛的風格
這次就來開箱分享預售屋用小預算裝潢後的成果,提供給桃園需要做室內裝潢的各位參考囉~~~

關於飛創空間規劃有限公司

飛創是由 2012 年創立的老品牌—華霖裝潢有限公司,延伸出來的系統工程品牌
本來就擅長改造室內裝潢及老屋翻新的華霖裝潢有限公司,加上後期成立,擅長改造系統櫃工程的— F.C 飛創空間規劃有限公司,藉由 2 者的整合將提供顧客更多元化的服務

飛創空間規劃設計的服務流程分成諮詢丶設計、工程三個階段,在諮詢階段會先進行初步溝通,了解屋主的理想需求、介紹設計流程及說明整體收費,之後再安排日期到現場實際丈量評估丶挑選色系風格等。待平面描圖確定且經過最終討論修改後,會簽訂改造合約,然後才會進到 Step 2 的設計階段。除了設計合約之外也會簽訂裝潢合約,以階段比例式收費,整體服務會等到最後驗收交屋、完工拍照後才算正式完成喔!

需求及預算規劃

期望的風格是近幾年的主流,簡約又百搭的北歐風
另外,因為當初購買的預售屋,格局本身就是自己喜歡的,再加上買房壓力預算的關係
這次裝潢決定把比較多的預算花在基礎工程裝修就好,不做大幅度的格局更動,維持 3 房 2 廳 2 衛的格局
讓總預算壓到最低,希望可以在 70 萬之內把房子裝潢得明亮乾淨,打造出一個清新耐看的家

需求及預算規劃如下:

  • 地點:桃園八德元臺境
  • 坪數:約 32 坪
  • 格局:3 房 2 廳 2 衛
  • 喜好風格:北歐風
  • 施作工種:冷氣包管 / 水電 / 木工 / 油漆 / 窗簾 / 石材 / 玻璃 / 榻榻米 / 燈飾 / 清潔工程
  • 總預算:70 萬元整

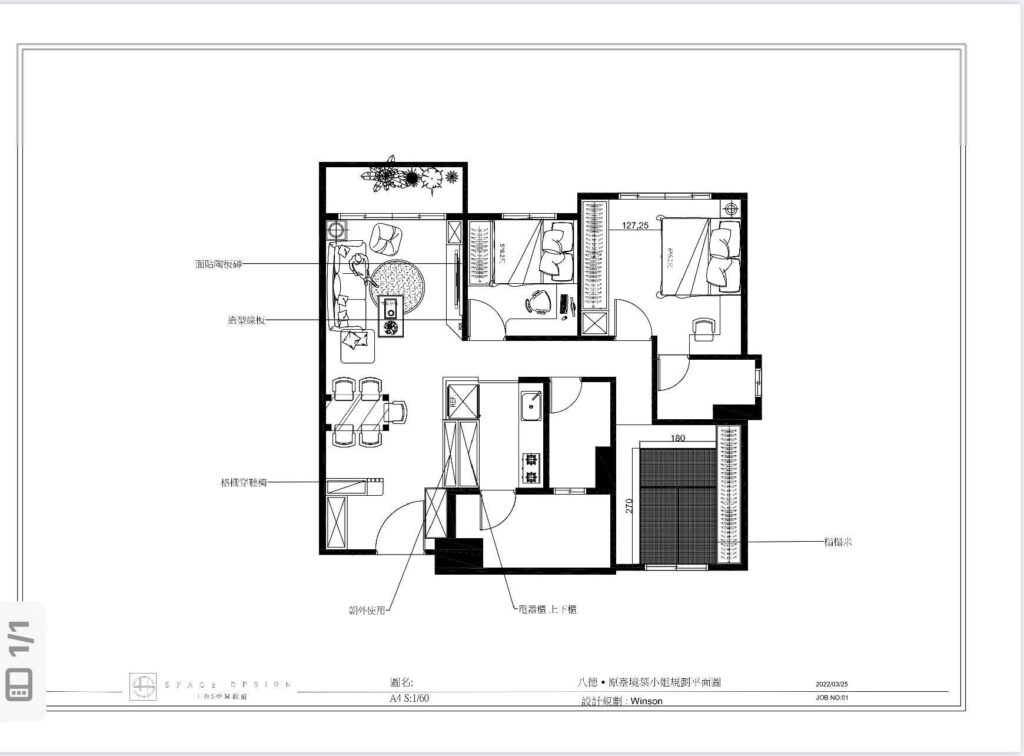
規劃平面圖如下:

飛創空間規劃有限公司設計平面圖

3D 模擬圖 & 完工照

經過一連串的溝通和討論之後,新家的雛形終於慢慢出來了~~
從討論到完工過程大概會需要 2 個月
在正式施工前,當然也會先提供 3D 實境模擬圖給我們參考,幫助我們更了解未來完工後的樣子
讓我們不必在腦中自己想像,也能確認是不是大家討論出來的共識

當初設計的 3D 模擬圖和實際完工照的對比如下:

#客廳+餐廳

3D 模擬圖

  • 飛創空間規劃有限公司3D圖(客廳)
  • 飛創空間規劃有限公司3D圖(客廳)
  • 飛創空間規劃有限公司3D圖(客餐廳)
  • 飛創空間規劃有限公司3D圖(餐廳)
  • 飛創空間規劃有限公司3D圖(客廳)

完工照

  • 飛創空間規劃有限公司完工照(客廳)
  • 飛創空間規劃有限公司完工照(客廳)
  • 飛創空間規劃有限公司完工照(客廳)
  • 飛創空間規劃有限公司完工照(客廳)
  • 飛創空間規劃有限公司完工照(客廳)

#主臥室

3D 模擬圖

  • 飛創空間規劃有限公司3D圖(主臥)
  • 飛創空間規劃有限公司3D圖(主臥)

完工照

  • 飛創空間規劃有限公司完工照(主臥)
  • 飛創空間規劃有限公司完工照(主臥)

#次臥1(榻榻米)

3D 模擬圖

  • 飛創空間規劃有限公司3D圖(次臥-榻榻米)
  • 飛創空間規劃有限公司3D圖(次臥-榻榻米)

完工照

  • 飛創空間規劃有限公司完工照(次臥-榻榻米)
  • 飛創空間規劃有限公司完工照(次臥-榻榻米)

#次臥2

3D 模擬圖

  • 飛創空間規劃有限公司3D圖(次臥)
  • 飛創空間規劃有限公司3D圖(次臥)

完工照

  • 飛創空間規劃有限公司完工照(次臥)
  • 飛創空間規劃有限公司完工照(次臥)

#玄關+廚房

3D 模擬圖

  • 飛創空間規劃有限公司3D圖
  • 飛創空間規劃有限公司 3D圖
  • 飛創空間規劃有限公司 3D圖(廚房)

完工照

  • 飛創空間規劃有限公司完工照(玄關)
  • 飛創空間規劃有限公司完工照(廚房)
  • 飛創空間規劃有限公司完工照

//

這次整體設計以清新且柔和的淺白、木質色調為主,整體配色溫馨舒適,沒有過多的色彩和裝修元素
在有限的預算之內,也不忘讓空間盡量保持開闊又保有足夠的收納、機能性,真的是小資族們的福音啊~~~
如果你也喜歡這種清新、簡約風格的話,很可以參考看看唷!

【飛創空間規劃有限公司】公司資訊

√地點:桃園市八德區忠勇一街59號
√官網:
飛創空間規劃有限公司
√LINE官方帳號:
飛創空間規劃有限公司

You may also like